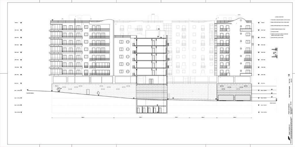
Parque Expo – Lote 4.45, Lisboa
Rendering
Projeto
Links:
https://triede.pt/en/works/condominio-habiexpo
https://energimac.pt/portfolio_page/cooperativa-inoqual-lisboa/
https://www.flosel.com/portfolio/cooperativa-inoqual/
https://www.seveme.com/pt/projeto/138/cooperativa-inoqual

















































